
Dostať upozornenie e‑mailom, keď bude produkt opäť na sklade
Predobjednávka produktu
- Popis
- Návody
- Spôsoby platby
- Záruka
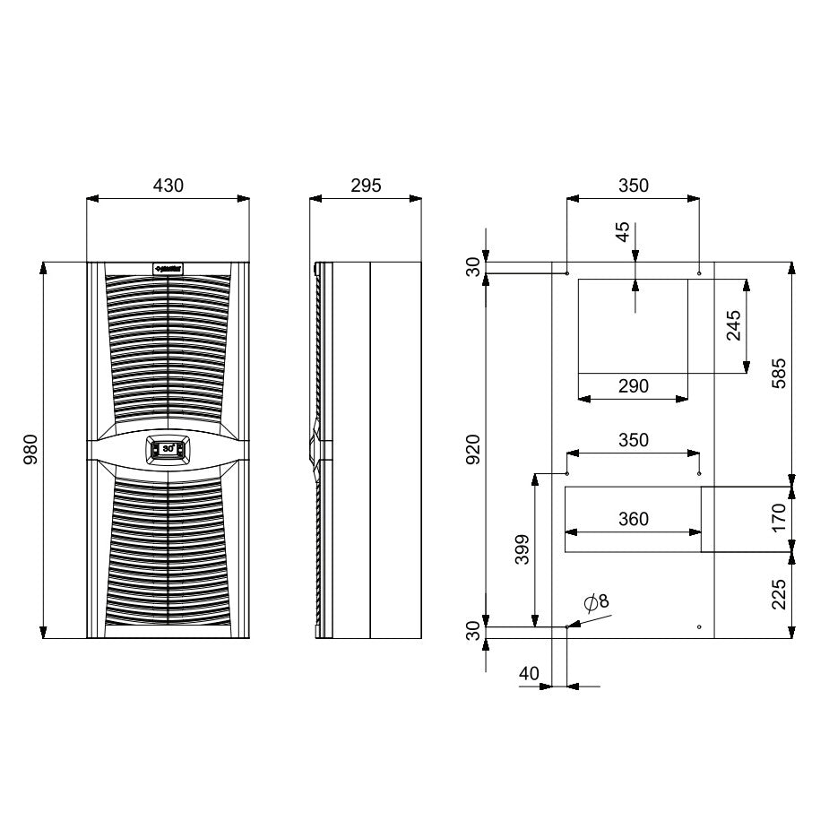
Klimatizačné zariadenie "Design Series" pre rozvádzače / chladiace zariadenia 2500 Watt / 8550BTU pre bočnú alebo nástennú montáž rozvádzačov a automatizačných rozvádzačov.
Klimatizácia PAD2550.01 (PLASTIM) pre rozvádzače je vybavená najmodernejším rotačným kompresorom HIGHLY otvoreného typu, termostatom Dixell, kondenzačným výparníkom a koncovým spínačom na ovládanie otvárania dverí rozvádzača.
Súčasťou dodávky je všetko potrebné na inštaláciu klimatizácie pre rozvádzače - tesnenia, odpadové potrubie, montážne skrutky, napájací konektor.
|
TECHNICKÉ ÚDAJE |
PAD2100.01 |
|
Chladiaci výkon L35 / L35 |
2100W / 7200BTU |
|
Prevádzkové napätie |
230 VAC |
|
Frekvencia |
50/60 Hz |
|
Spúšťací prúd |
10A |
|
Prevádzkový prúd |
3.8A |
|
Poistka |
16A |
|
Spotreba energie |
800W |
|
Prevádzkový rozsah |
0-55 °C |
|
Továrne nastavenie termostatu |
35 °C |
|
Diferenciál |
4 °C |
|
Max. Objem vzduchu Vnútorný okruh |
510 m³/h |
|
Max. Objem vzduchu vonkajší okruh |
625 m³/h |
|
Typ chladiva |
R134a |
|
Množstvo chladiva |
700gr |
|
Rozmery |
980x430x270mm |
|
Hmotnosť |
46kg |
|
Úroveň zvuku |
80 dB |
|
Stupeň ochrany (vnútorný obvod) |
IP 54 |
|
Stupeň ochrany (vonkajší obvod) |
IP 34 |
|
Farba |
RAL7035 |
|
Kompresor |
HIGHLY/HITACHI |
|
Typ kompresora |
Rotačný |
|
Ventilátory |
EBMPAPST |
|
Spôsob montáže |
Montáž na stenu |
Online platba kartou – po dokončení objednávky budete presmerovaní na platobnú bránu, potvrdenie o platbe vám dorazí na e‑mail.
Dobierka – úhradu podľa platobného predpisu zaplatíte kuriérovi prepravnej spoločnosti.
Prevodom – na váš e‑mail obdržíte najneskôr nasledujúci pracovný deň zálohovú faktúru, na ktorej nájdete číslo účtu, ktoré zadáte pri platbe.
Na faktúru – túto možnosť úhrady majú partneri, ktorí majú s našou spoločnosťou uzatvorenú rámcovú zmluvu.
Ak by ste chceli použiť posledné dve možnosti, kontaktujte nášho manažéra, ktorý vám poskytne inštrukcie, ako obdržať faktúru s DPH alebo bez DPH.
Nami dodávané elektrické zariadenia spĺňajú vysoké štandardy kvality, majú záruku 24 mesiacov a vyhovujú všetkým požiadavkám EÚ.
Ponúkame tiež dopravu zdarma (pri objednávkach nad 100 €), flexibilný systém zliav a akcií. Technické znalosti a skúsenosti našich zamestnancov nám umožňujú poskytovať vysokokvalitné poradenstvo a v prípade potreby ponúknuť alternatívy elektrotechnických produktov.
Elektrické vybavenie, ktoré dodávame, spĺňa vysoké štandardy kvality, je kryté 24-mesačnou zárukou a spĺňa všetky požiadavky EÚ.
V prípade reklamácie sa vrátenie tovaru neúčtuje.
